










Diseño y Cálculo de estructuras adaptadas a las necesidades del cliente, edificación, elementos de protección, bancadas, aparatos de apoyo, esculturas, etc. Resolución de los cálculos adaptada al elemento y la dificultad; con simples cálculos manuales o con software especializado, siempre contando con el apoyo de expertos en cada rama de esta “Ciencia Elástica”




















En 2017 se proyectó y construyó en la zona industrial de Playa Honda un edificio comercial con aparcamiento bajo rasante para el Grupo Spínola donde finalmente se instaló la cadena de supermercados Lidl.
Se resolvió mediante celosías generando un volumen diáfano para el espacio de venta con cubierta deck a un agua.






Entre 2015-2016 se proyectó y ejecutó una nave industrial en Playa Honda para la Comercial Marcial Perez S.L. con un diseño adaptado a la singularidad de la parcela. Cubiertas a dos y tres aguas con estructura totalmente premontada con uniones atornilladas.
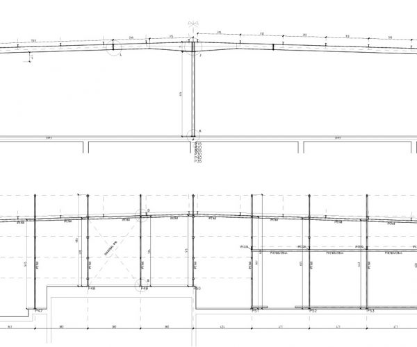
En 2017 se redactó y ejecuto un edificio sin uso para el Grupo Spinola con sótano y nave de dos cuerpos que finalmente fue ocupado por un taller de servicio de neumáticos.
Se resolvió mediante pórticos triapoyados de inercia variable a dos aguas con cubierta deck y cerramientos ligeros.








Entre 2007 y 2008 se proyectó y ejecuto en Arrecife el proyecto de dos naves adosadas para Fabrecar S.A. Con un diseño de fachadas a base de panel prefabricado que explotaba al máximo las posibilidades del material en ese momento. El acabado es hormigón natural con veladura de silicato que no requiere mantenimiento de pintura.
En 2024 se finalizó en Arrecife el proyecto de dos naves adosadas provisionales para Alumar Castro S.L. Edificio diseñado para ser fácilmente removible ajustándose a los requisitos de la licencia.

















































